61,2 m2 Šaltinių g. 24

249.00

Įrengto buto techninis paketas

Daugelis naujos statybos butų turi identiškus arba labai panašius išplanavimus, todėl vienas gerai apgalvotas interjero ir techninis planas gali tikti ne vienam būstui.

Šis paketas sukurtas tiems, kurie nori gyventi gražiai, tačiau neturi laiko ar noro ieškoti dizainerio, bijo didelių išlaidų ar ilgo proceso. Čia rasite viską, ko reikia, kad galėtumėte iš karto pradėti darbus ir pasiekti profesionalų rezultatą.

 

Ką gausite pirkdami paketą

  • Baldų išdėstymo planą
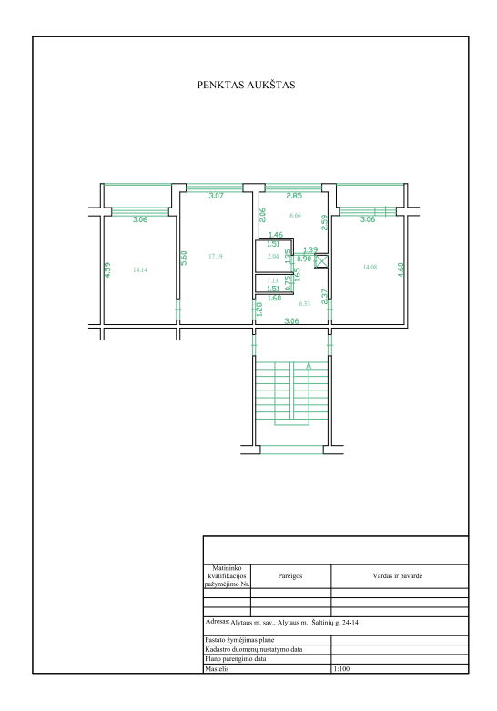
  • Statybos planą
  • Santechnikos ir elektros įvadų planus
  • Apšvietimo ir jo valdymo planą
  • Nestandartinių baldų brėžinius: prieškambario spinta, sandėliuko lentynos, vonios baldai, miegamojo spintos, virtuvės komplektas, TV baldas ir kt.
  • Virtuvės spintos ir kitų baldų medžiagiškumus
  • Vonios kambario plytelių išklotinę
  • Prekių ir medžiagų sąrašą: grindų danga, plytelių kiekiai, naudojamos medžiagos ir kt.

Privalumai

  • Matote galutinį rezultatą dar prieš pradedant darbus.
  • Aiškus procesas – viskas suplanuota nuo baldų iki apšvietimo.
  • Sutaupote pinigų ir laiko – turite aiškų planą ir galite greitai imtis darbų.

Kam tinka

  • Naujakuriams, norintiems aiškaus ir paruošto interjero plano.
  • Investuotojams ar fliper‘iams, siekiantiems greito įrengimo sprendimo.
  • Tiems, kurie nori aiškumo ir vizualiai suderinto rezultato.

Kodėl verta

Gaukite visus reikiamus brėžinius, planus ir prekių sąrašus iškart po pirkimo – be laukimo ir papildomų derinimų. Sutaupykite laiką, pinigus ir pradėkite įrengimo darbus jau šiandien.

 

Prenumeruokite mūsų naujienlaiškį!
Prenumeratorių forma
© NTPROJEKTAI 2025. Visos teisės saugomos.